

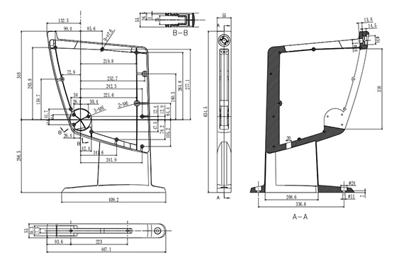
铝合金站脚尺寸及技术要求:
1.铝合金扶手框净重量≥2.9KG,需提供扶手框小样一个
2.铸造过程不得有较大气孔、疏松、夹渣等不良现象。
3.站脚成型后周边不能有毛刺、飞边。
4.表面喷砂处理:灰色。
技术要求:
1.座椅根据人体工程学原理及形态美学设计制造,背垫和座垫之弧度完全符合人体原理曲线,座高和座深合理,坐感舒适,座垫可自动回复,座椅外观简洁而美观。
2.座椅基本中心距为560±5mm,座包打开侧深760±5mm,基本椅高为1025±5mm,最小排距:950mm。
3.在保证观众舒适度的前提下,背垫高不超过1025mm,增加椅背板的声反射面积,改善座椅的吸声;座底板根据需要打吸音孔,使座椅的吸声量在不同的上座率尽可能保持一致。
4.下藏式写字板:写字板链接铝头、托板采用优质铝合金材料经模具一体压铸成型。写字板面板采用ABS复合材料经模具一体注塑成型,写字板固定方式为机械原理高强度螺栓,使写字板链接部位越用越结实,不会出现松弛现象,尺寸规格:长度为381.2±2mm,宽度为261.2±2 mm,厚度为45mm;扶手和写字板向上倾斜6.5度保证书写自然状态,写字板打开回收时需带消音功能,不可有反弹力与噪音出现。
5.面料采用高档针织面料,并经防静电、防蛀处理,手感舒适,长时间使用无皱褶、断裂、起球、褪色现象。
6.座椅泡绵均为聚氨酯冷发泡高回弹定型海绵,座海棉尺寸:长度为480±10mm,宽度为460±5mm,高度为150±10mm,海棉密度为50-55KG/M3,背海棉尺寸:长度为460±5mm,宽度为750±5mm,高度为140±5mm,海棉密度为40-45KG/m3,强度高,回弹性好,独特配方,使泡绵具有抗菌性,能有效杀灭大肠杆菌等病菌。
7.座椅扶手为优质进口橡木实木,曲线造型,不变形、不开裂,扶手尺寸规格:长度为355±2mm,宽度为60±2mm,高度为30±2mm。
8.座包采用阻尼回复机构,两级缓冲先快后慢,使座包3秒内可回复到位,具备逃生消音功能,座包回复碰撞部位增加橡胶垫防撞降噪,使座包打开无噪音,回复缓慢无冲击性撞击。
9.座背内外板:采用优质高密度硬木多层板,经模具冷压注成型,不褪色,抗变型。背外板规格:长度为762±2mm,宽度为495±2mm,厚度为15mm。座外板尺寸规格:长度为440±2mm,宽度为425±2mm,厚度为12mm。背内板:采用优质夹板经模具压弯成型。外型成弧型,美观大方,具有曲线美。背内板尺寸规格:长度为715±2 mm,宽度为450±2mm,厚度为6 mm。座铁框:采用高度强度优质碳素钢板冲压折弯焊接成形,同时增加5条直径2.5mmS形蛇簧,保证座椅的舒适度、牢固度和长久使用无故障、无异响。尺寸规格:长420±2mm,宽度为410±2mm,高度为56±2mm。
10.铝合金扶手框架:采用优质铝合金材料经模具一体压铸成型喷涂防氧化处理,内设下沉式写字板打开回收功能,并保证写字板有足够活动空间,铝合金扶手宽≥55mm, 重≥2.9KG。扶手表面采取带弧面设计,以保证产品的满饱美观性,测板采用防污防尘高级面料做3MM复棉中纤板处理外扣而成。
11.座椅固定方式采用地爆螺丝固定地面,塑料防尘盖装饰,保证椅脚平滑美观的同时防止积尘,便于清洁。








